Modern Country Retreat on 10 Private Acres – 583724 Side Road 60, Holland Centre
Just one hour north of Highway 9, this exceptional 2-bedroom, 2-bathroom custom bungalow is nestled in a serene 10-acre woodland setting. Built in 2020 by a meticulous custom home builder for personal use, the home blends luxury, efficiency, and a deep connection to nature.
Refined Living, Thoughtful Design
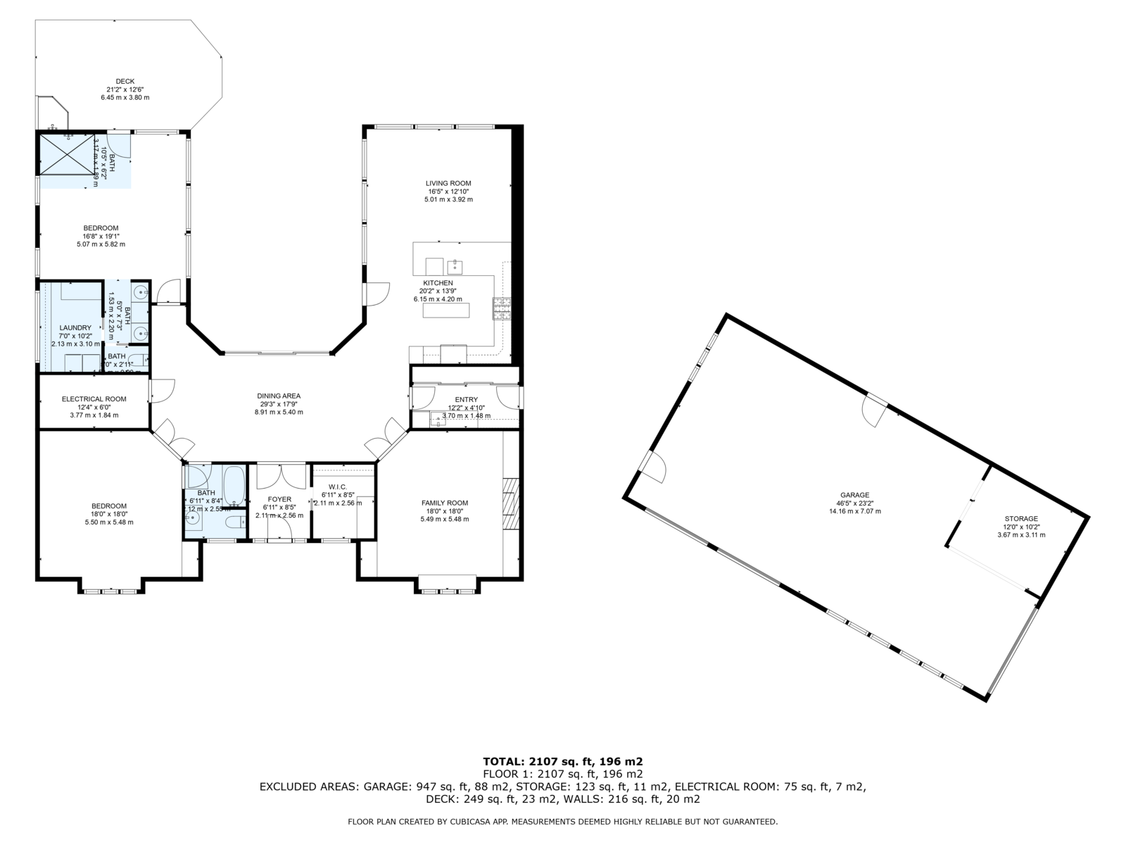
Offering 2,107 sq ft of stair-free living, the home is finished to an impeccable standard. Wide-plank engineered oak flooring, 24”x24” Italian porcelain tile, and high-end fixtures (Brizo, Hansgrohe, Kohler) speak to its quality. Designer lighting and built-in Klipsch ceiling speakers in every room add comfort and style.
The gourmet kitchen features premium appliances, a large island, and a 10-foot peninsula—ideal for entertaining with views over the forest and meadow.
Built for comfort and sustainability, the home boasts a double-walled envelope (R34), R70 attic insulation, triple-pane windows, R20 underslab insulation, ductless "mini-split" heating and cooling provides backup to dust-free, radiant in-floor heating (wood boiler), LED lighting, and a 50-year architectural shingle roof. Starlink high-speed internet ensures seamless connectivity.
Bonus Detached Garage & Workshop
A major highlight is the beautiful 1,000+ sq ft detached garage, featuring three ...
Property Details
Video
Photos
Floor Plan
Map
Presented By


